Villa unifamiliare Littos-Longos, Ossi

Località : Ossi (SS)

Progettisti: Arch. Francesco Dettori (capogruppo)

  • Ing. Giovanni Lorenzo Marras

Collaborazione

  • Geom. Giuseppe Derudas

Anno: 2002 - 2004

Committente: Privato

Pianta Seminterrato

Il progetto interessa la realizzazione di una casa di civile abitazione da realizzarsi in zona C nel Comune di Ossi.

L’intenzione progettuale è quella di ricercare nel sito un principio insediativo che denoti al tempo stesso un forte ancoraggio alla natura del luogo, una chiarezza compositiva e una facile riconoscibilità urbana.

Il programma funzionale:

Dal cancello pedonale, attraverso una leggera rampa in salita di 5 mt, necessaria per superare il dislivello, si accede all’atrio d’ingresso; da questo snodo spaziale si deve poter accedere con relativa indipendenza a tutte le aree funzionali della casa. Si passa poi ad un disimpegno che serve lo studio ed un bagno a servizio di tutta la zona giorno. Lo studio risulterà quindi disposto nel corpo di fabbrica parallelo alla strada. Lo studio può avere un secondo affaccio verso un giardino interno sul lato settentrionale. Dall’atrio di accede ad un secondo disimpegno della zona cucina che comprende una lavanderia stireria, una dispensa ed una grande cucina. Sempre dall’atrio si deve poter accedere ad una scala che costituisce il fulcro dei collegamenti verticali col seminterrato e con gli eventuali locali al piano superiore. L’atrio collega direttamente con la zona soggiorno pranzo affacciata sull’ampio panorama che va da ovest a nord; la zona pranzo deve essere direttamente collegata alla cucina; il soggiorno deve disporre di un ampio camino; le vetrate sono protette ed ombreggiate da un profondo porticato che nel punto attiguo alla cucina si deve ampliare per diventare un vero e proprio soggiorno all’aperto. Dalla zona giorno si passa alla parte più interna e riservata della casa; la zona notte si articola in due camere da letto per i bambini servite da un bagno e una camera padronale dotata di cabinaarmadio e di bagno. Le camere da letto si devono poter affacciare sia sul lato ovest (panorama)

Pianta piano primo

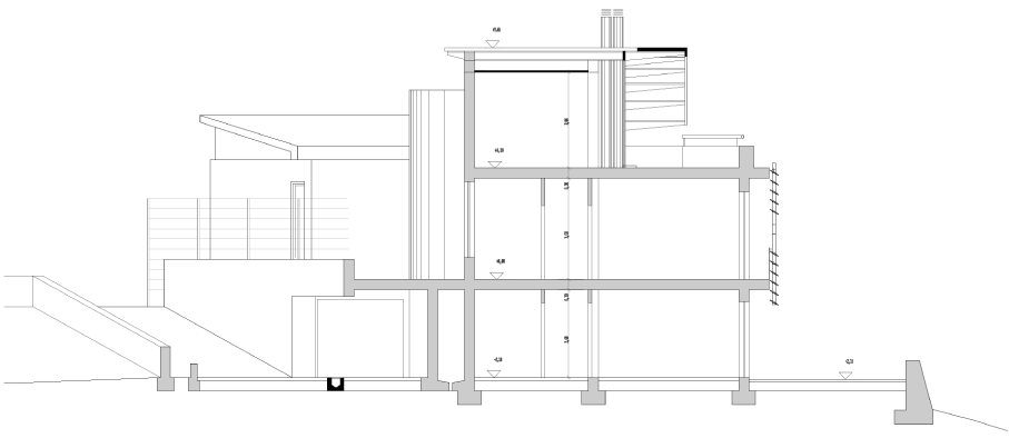
Sezione B-B’

Indietro
Indietro

Campo sportivo - Rocca Ruja

Avanti
Avanti

Concorso - Parco Talenti, Roma